Banking room details drawings 2d view plan and elevation autocad file
Description
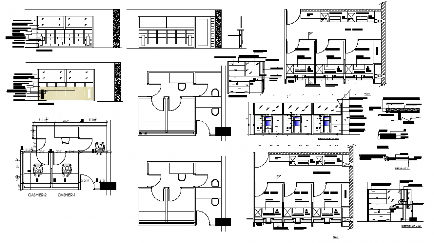
Banking room details drawings 2d view plan and elevation autocad file that shows cabins details of the bank with plan and elevation of the bank. Dimension details with furniture layout details also shown in drawings.
Uploaded by:
Eiz
Luna

